浅析陶土板幕墙

摘 要:介绍了陶土板及陶土板的优点,以及陶土板幕墙设计中的一些要点。

关键词:陶土板幕墙

一、前言

近几年来,随着节能建筑的兴起,各种新型的节能材料层数不穷,笔者最近参与了几个公共建筑的幕墙设计,其中就涉及到了一种新型节能材料 陶土板,随着这种新型材料运用的增多,特写此文,以供大家交流参考。

首先向大家介绍一下什么是陶土板 以大自然的纯净陶土为原材料,通过精细加工、专用设备挤压成型、烘干、高温窑烧等工序形成的具有相当强度、硬度和表面精度的板材,称为陶土板。 陶土是世界建筑学史上的一种新型材料,是传统材料在现代建筑上的应用,它将传统材料与现代建筑有机结合在一起,更新了建筑语言。

同时现代建筑在材料的运用上,不再片面地追寻新材ā的时髦,而是更加尊重其地域性。陶土是原始的天然材料。又融入蕴含着几千年古老中国的传统文化,既保持了传统风格,又表现出现代的时尚设计。陶土板和陶土板幕墙使传统原料与现代建筑巧妙而完美地结合。是传统与现代相结合的优秀、成功之例。目前国内、外幕墙面板的选材已经由以前的单一追求现代化、科技含量的势头,逐渐转向追求人文艺术气息、天然环保、节能降噪的以人为本的趋势。而陶土板所特有的人文艺术气息、天然的色彩、环保的材料及节能防噪的优势,适应了幕墙材料需求大势所趋的人本化倾向,陶土板幕墙具有独特的人文艺术气息,色彩鲜亮华丽,质感淳朴耐看,洋溢着活跃的朝气,是打造城市建筑新形象的幕墙面板理想选材。得到了业内的建筑师、开发商、设计师、幕墙公司及材料商等各方面人士的青睐,这也是陶士板幕墙迅速发展的真因。

不过说到陶土板,还会让人联想到另一种新型材料陶瓷板,二者都是建筑外墙装饰新材料,目前被广大设计师和业主所喜爱,有广阔的应用前景。两种材料有着相似的生产方式和成份,但一字之差却有着非常大的性能差异。

两种材料的主要成份都是陶土,都是经过挤压后高温烧制而成。陶土板的原材料是纯正的大自然的陶土,不含其他成份,因此吸水率偏高,其较大的强度及硬度完全是经过高科技设备挤压形成的,技术含量较高,工艺复杂,成本偏高,但脆性小,可加工性好,不易崩边;陶瓷板的主要原材料是陶土,但其为了增加强度及硬度而加入了大量的石英砂等材料,固而吸水率偏低,工艺相对简单,成本较低,但脆性相对较大。

二、下面介绍一下陶土板幕墙的优点:

陶土板幕墙属于构件式幕墙,通常由横料或横、竖料加上陶土面板组成。除和常规的玻璃、石材、铝板幕墙所具有的基本特征外,由于其陶土的特点,先进的加工工艺和科学的控制手段,因而在外观、性能上有独特的优点。材料环保:由天然陶土配石英砂,经过挤压成型、高温煅烧而成,没有放射性,耐久性好。

颜色历久弥新:颜色为天然陶土本色,色泽自然、鲜亮、均匀,不褪色,经久耐用,赋予幕墙持久的生命力。外墙砖有20种可得的颜色:深红色,铁锈红色,天然红,粉红,橙红,浅褐色,沙黄色,蓝灰色,珠光灰,铁灰色,火山灰色,瓦灰色。这些都是陶土的天然本体色(没有任何油漆和釉涂料),因此砖瓦可以随意地根据需要来切割而不影响外观效果。还有五种可选的表面形式:标准的,磨光的,拉丝的,凹槽造型的,印染的。

易洁功能显著:表面可分为釉面和毛面两种。釉面陶板室内外均适用,具有良好的易洁功能,比天然石材更不易污染。毛面陶板适用于室内。

性能卓越:陶板幕墙技术性能稳定,抗冲击能力强,满足幕墙的风荷载设计要求;

陶板幕墙耐高温,抗霜冻能力强;

陶板幕墙阻燃性好,安全防火。

结构合理:干挂系统的组合安装设计,在局部破损的情况下陶板可实现单片更换,维护方便;

陶板中空的结构使之降噪效应好,自重轻;

陶板的高强度能够满足不同尺寸的随意切割,但有一定的模数要求;

兼容性好:陶板幕墙具有温和的外观特质,容易与玻璃、金属搭配使用。

陶板幕墙可以减少光污染,增加墙面的抗震性。

安装方便:陶板幕墙设计结构合理、简洁,能最大地满足幕墙收边、收口的局部设计需要,安装简易方便,无论是平面、转角或其它部位,都能保持幕墙立面连贯、自然、美观。

配套成本低:由于陶板重量轻,因此陶板幕墙支撑结构要求比石材幕墙更为简易、轻巧,节约幕墙配套成本。

三、陶土板幕墙设计陶土板幕墙设计必须遵守中国国家及行业有关标准和规范

下面对设计要点的建议仅供参考

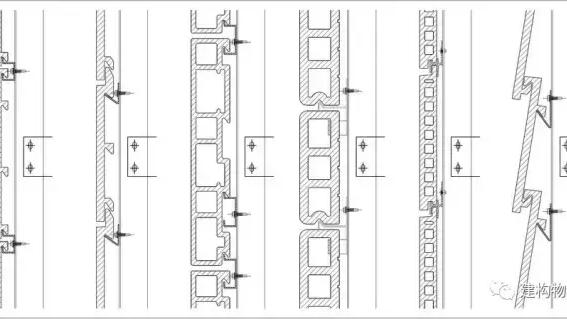
3.1陶土板幕墙干挂安装方式采用金属挂件和挂装系统将石材安装往室外墙面主要形式有:

1)陶土板通过挂件直接镶嵌在主体结构上;这种陶土板幕墙主要是在结构上打孔,通过植筋胶和不锈钢挂件连接结构,陶土板通过背栓和不锈钢挂件连接,保证幕墙的平整度有一定难度。

2)陶土板通过挂件镶嵌在金属框架上或幕墙结构上,再附着在主体结构上;

3)陶土板通过挂什镶嵌在金属框架上或幕墙结构组成单元式幕墙,再安装在主体结构上。

3.2陶土板幕墙面板的连接方式陶土板幕墙的面板,宜采用以下

几类连接方式:

(1) 在陶土板边缘开槽口,用金属挂件连接;

(2)在陶土板面板背后,开孔或开槽,用背栓、背槽或背卡连接;

(3)在陶土板面板的边缘打结构胶粘结铝型材附框,通过附框与横梁、立柱连结,附框应带挂钩固定石材面板。

3.3一般陶土板幕墙都采用开缝式结构,由于陶土板之间不打密封胶,在强震下部分陶板在幕墙面内产生侧向滑移,使板缝宽窄不一,甚至陶板之间相互碰撞。虽未发现陶土板碰坏,但影响美观。以上为一点拙见,希望大家多多交流。

参考文献:

[1]新嘉理陶板幕墙工程手册.

[2]瑞高陶板幕墙工程手册.

浅析陶土板幕墙

转载请注明出处学文网 » 浅析陶土板幕墙

学习

《岬童夷》杀人者再次回忆

阅读(139)

导演:赵秀沅主演:尹相铉、成东日、金敏贞、李准、金智媛类型:悬疑/剧情首播时间:4月11日(韩国)真实改编悬念升级首先得提醒所有胆子小的姑娘,看完《岬童夷》的后遗症有两个:一,听到口哨声会毛骨悚然;二,深夜不敢一个人回家。当然,看到片名,相信很多人

学习

俞灏明:其实我还好

阅读(141)

本文为您介绍俞灏明:其实我还好,内容包括俞灏明平凡的苦衷,俞灏明歌曲其实我还好。如果没有2010年10月22日下午的那场意外,俞灏明现在会是怎样?19岁的他从2007年的“快男”比赛中脱颖而出,2009年又饰演了青春偶像剧《一起来看流星雨》中的

学习

高校二手书交易市场的分析与探讨

阅读(170)

本文为您介绍高校二手书交易市场的分析与探讨,内容包括高校二手书行业现状分析,高校二手书如何盈利。随着校园环保热潮的兴起与在校大学生人数的日益增长,环境保护与学生对课本需求量增多的矛盾日益突出。倡导绿色校园,促进高校二手书的流

学习

激光切割的机理与机械工艺技术

阅读(138)

本文为您介绍激光切割的机理与机械工艺技术,内容包括3000瓦激光切割工艺参数表,12000w激光切割工艺参数。激光切割具有切割质量好、效率高、速度快等特点,与其他热切割方法相比,激光切割不仅适用面广,而且能够实现无接触加工,具有广泛的市场

学习

论异常采集数据在判断计量异常中的应用

阅读(165)

摘要:用电信息采集系统通过终端把用电现场有关的信息数据采集存储到主站,运行监管人员通过采集数据与档案阈定值的比对分析、各类数据综合分析的方法,及时发现异常采集数据,支撑现场计量异常缺陷的检查,减少电力经济损失,维护电力用电秩序。

学习

草原生态系统与草原生态经济的研究

阅读(177)

本文为您介绍草原生态系统与草原生态经济的研究,内容包括草原生态系统的经济效益,草原生态系统的可持续发展。草原生态系统是草本植物主体生物群落和环境构成的功能统一体。草原生态系统处于干旱地区,年降雨量少。相比较而言,草原生态系统

学习

昭君出塞

阅读(189)

本文为您介绍昭君出塞,内容包括昭君出塞全文讲解,昭君出塞全文原唱。408人物:王昭君毛延寿侍女皇上呼韩邪单于武士若干介绍:王昭君千里走单骑,为民族团结做奉献,可歌可泣;卑鄙的毛延寿受到怎样的处置,请看讽剌剧《昭君出塞》。歌管楼台,秋千院

学习

让爱做主

阅读(158)

本文为您介绍让爱做主,内容包括让爱作主完整版,让爱作主完整版小说免费。1夜外大街黑屏历拉的脚步声,淡入,历拉转身往后看,脚步快起来了,跑过一条小巷,穿过一个红灯,来到一家pub,看家招牌:high,笑了,松口气,推门进入。2夜内pub历拉在侍应的带领下(历

学习

不可忽视的双眼视觉功能

阅读(141)

本文为您介绍不可忽视的双眼视觉功能,内容包括视觉质量和双眼视功能的关系,双眼视力正常不代表立体视觉。一个小生命来到世界上,在他感知世界的过程中,绝大部分的信息都来自眼睛。出生时,婴儿只能看眼前较大的物体。随着生长,逐渐能看清远处

学习

简述公路路堑施工要点

阅读(188)

本文为您介绍简述公路路堑施工要点,内容包括路基路堑施工方案,公路工程路堑施工流程详解。[摘要]公路路堑就是指在公路施工中对原有地形进行下挖后行成的路基形式,这种路基形式在山岭区施工过程中遇到的比较多,我们在进行施工的过程中一般

学习

健康财富需珍惜

阅读(163)

本文为您介绍健康财富需珍惜,内容包括健康就是第一财富全文,珍惜健康的经典语录。1月8日,中国保健营养理事会2011年会暨中国保健营养杂志社年终总结会、中国保健营养理事会淘宝商城上线推广说明会、中国保健营养理事会高端食用油推广委员

学习

农机市场

阅读(167)

本文为您介绍农机市场,内容包括农机厂家批发市场,农民农机产品批发市场。中央农村工作会议在京召开全面部署今年农业和农村工作新华社新春贺词崔本中打造百年企业创建世界品牌刘大功整合产业做强农机刘成强新起点新机遇新挑战王金富面对

学习

葡萄硬枝扦插繁殖技术

阅读(160)

本文为您介绍葡萄硬枝扦插繁殖技术,内容包括扦插葡萄枝先发芽了怎么办,葡萄硬枝扦插实习报告。扦插繁殖法,分枝插法和根插法。枝插法又分硬枝扦插和绿枝扦插。影响葡萄硬枝扦插繁殖的因素主要有插条的种类、温度、湿度、光照、扦插技术。

学习

短篇小说《外婆的日用家当》的人文关怀――母亲的选择

阅读(170)

本文为您介绍短篇小说《外婆的日用家当》的人文关怀――母亲的选择,内容包括外婆的日用家当段落分析,外婆的日用家当双语版。[摘要]《外婆的日用家当》是艾丽思沃克尔最优秀的短篇小说之一。作品是通过母女三人对待两床百衲被的不同态度

学习

浅谈单元式幕墙设计

阅读(183)

本文为您介绍浅谈单元式幕墙设计,内容包括构件式幕墙和单元式幕墙,单元式幕墙深化设计。摘要:本文首先介绍了单元式幕墙的特点,然后分析了单元式幕墙考虑加工、安装快捷设计,最后探讨了单元式幕墙防水设计。

学习

浅谈干挂石幕墙的短槽式与背栓式安装方法

阅读(159)

本文为您介绍浅谈干挂石幕墙的短槽式与背栓式安装方法,内容包括背栓连接干挂石材幕墙施工方法,短槽式石材幕墙干挂法。摘要:本文主要介绍石材幕墙中干挂石面板的短槽式安装方法与背栓式安装方法,分别阐述其各自的施工关键技术和质量控制措

学习

单元体幕墙C型槽式埋件预埋施工技术

阅读(175)

本文为您介绍单元体幕墙C型槽式埋件预埋施工技术,内容包括幕墙u型槽式预埋件,幕墙后置埋件和槽式预埋件。摘要:单元体幕墙C型槽式预埋件,有效的解决了大型外装幕墙受力点的难题,应用C型槽式预埋件使幕墙工程可实现真正意义上的单元式施工程

学习

双层幕墙原理及其特点浅析

阅读(188)

本文为您介绍双层幕墙原理及其特点浅析,内容包括双层幕墙原理,双层幕墙是由哪些构成。关键词:工作原理;环保;节能

学习

浅析多媒体在教学中的优缺点

阅读(250)

本文为您介绍浅析多媒体在教学中的优缺点,内容包括多媒体讲课的优缺点,多媒体教学的优缺点。【摘要】多媒体在课堂教学中的应用越来越普及,但同时在教学中存的问题也日渐暴露,逐步陷入教学的困境。文章通过对多媒体在现代教学中的应用分

学习

单元式玻璃幕墙设计浅谈

阅读(210)

本文为您介绍单元式玻璃幕墙设计浅谈,内容包括单元式玻璃幕墙设计,单元式玻璃幕墙哪家好。摘要:单元式玻璃幕墙近几年发展较为迅速,是目前在工厂加工程度最高的一种护幕墙类型。单元板块的高度等于一个楼层,以便于运往工地后直接固定在主

学习

谈定制营销的优缺点及发展趋势

阅读(207)

本文为您介绍谈定制营销的优缺点及发展趋势,内容包括定制营销的发展展望,分析定制营销的优势与劣势。[提要]在商品流通的诸多环节中,人们进行营销活动的出发点和最终目的都是为了满足需求。随着社会经济的不断发展,以及经济全球化的到来,现有

学习

浇注绝缘母线和绕包绝缘母线的优缺点分析

阅读(230)

本文为您介绍浇注绝缘母线和绕包绝缘母线的优缺点分析,内容包括全绝缘母线改造半绝缘母线方案,全绝缘母线和半绝缘母线区别。摘要:由于世界电网不断地升级,绝缘母线的需求量在日益增大,因此,国内外做绝缘母线的厂家也随之增多。就是因为这样